Expressing Warmth in a Grand Home Through European Details

29 Dec 2025
BACK

Located at Mount Regalia in Kau To Shan, this residential unit spans approximately 2,100 sq ft and is home to a family of three. Prior to the redesign, the layout was relatively conventional, with limited daylight penetration and circulation that did not fully capitalize on the home’s close connection to nature. This project was guided by the core objective of creating a relaxed, long-term living environment. By reworking the spatial layout, opening up sightlines, and refining proportions, the design draws outdoor views and natural light into the interior, enhancing both comfort and livability.

OP
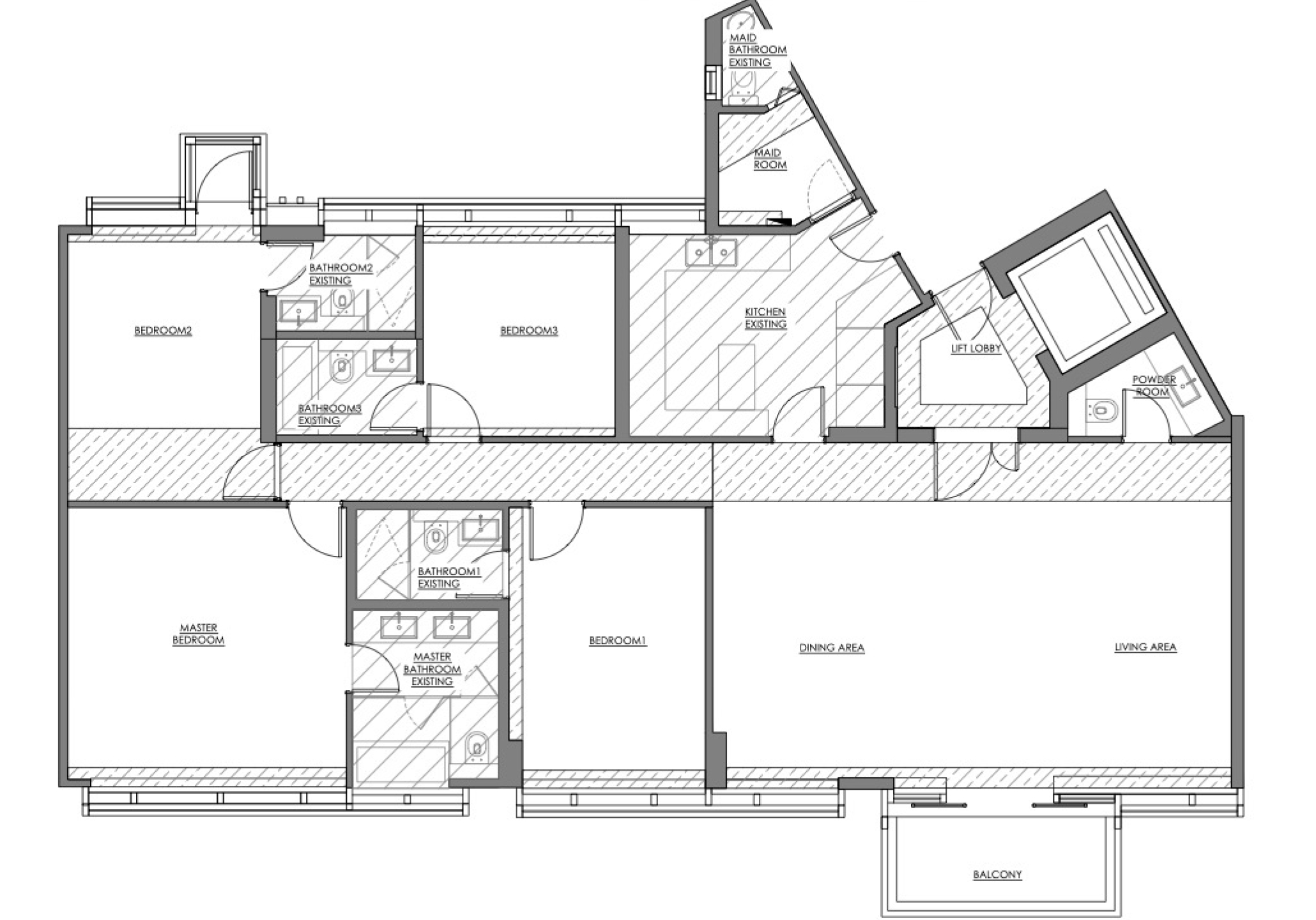
Before
LP
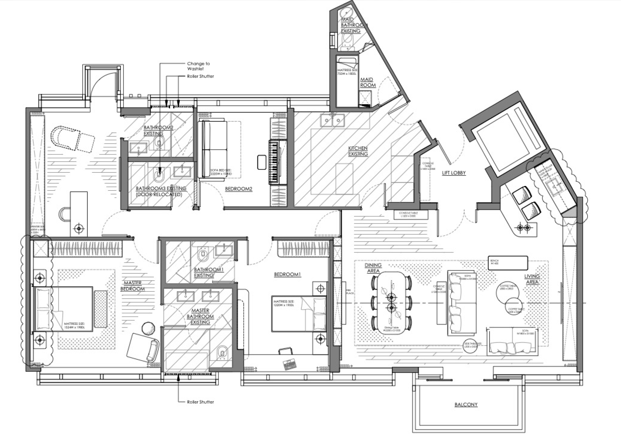
After

The living area is anchored by a warm beige-grey palette, complemented by classic European-style moulding details that establish an elegant yet understated tone. The original powder room was removed due to its impractical location and limited use, and reconfigured into an open bar area that extends the functionality of the living and dining spaces while serving as a visual focal point. The TV feature wall adopts a recessed design, visually connected to the bar island that subtly defines the zones. Behind the dining area, a European-style fireplace feature wall is introduced, with cabinetry lines extending naturally to conceal the corridor beyond, resulting in a cleaner and more streamlined spatial composition. At the transitional zone between the living and dining room, a full-height Morandi mist-blue wall creates a bold feature, infusing the space with the homeowner’s distinct character and emotional depth.

The master bedroom and the adjoining study room share a cohesive design language, with darker wood finishes serving as the primary element to create a calm spatial atmosphere. Glass and display cabinetry are deliberately introduced to add dimensionality, while visually offsetting the heaviness of the dark timber and preserving a sense of warmth without enclosure. The wardrobe in the master bedroom is predominantly crafted in solid wood, interspersed with glass-panelled sections to enhance transparency, allowing the darker palette to feel lighter and more balanced while maintaining both functionality and material sophistication.

​​The daughter’s bedroom is defined by layered tones of soft creamy hues, creating a gentle and welcoming atmosphere. Furniture details incorporate striped patterns and curved forms, adding a sense of playfulness while maintaining visual harmony. A custom work desk is thoughtfully positioned by the window to maximize natural light, enhancing comfort and usability during study time, and achieving a balanced interplay between aesthetics and functionality.