靈動海景之家:以弧線重塑現代生活曲線

28 Oct 2025
返回

在貝沙灣這個實用面積超過1700呎的住宅項目中,我們的團隊以「靈動線條」為單位的設計主軸,透過空間的重新佈局,滿足一家四口的生活節奏與動線需求。靈感取自於窗外的海景,整體以現代風格為基調,採用淺色調與滲燈效果營造柔和光影,弧形設計呼應單位面向海景的天然曲線,讓空間如海浪般流動、明亮而開闊,賦予居所更多視覺層次,成為了這所兼備功能與實用的現代海景住宅。

OP
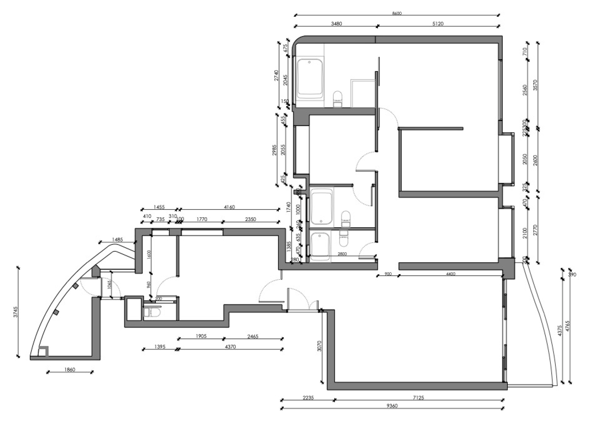
改造前
LP
改造後

原本單位的玄關缺乏明確分區,不同物料交錯使用令視覺顯得繁複、缺乏統一感,也未能滿足日常使用上的實際需要。設計團隊重新規劃入門動線,在入口位置打造出一個完整的玄關區域。以簡潔柔和的材質為主,配合連貫式的牆身與燈光,定下入門口的和諧基調。玄關更設有內置收納櫃延伸去到客飯廳,滿足戶主日常儲物需求;中間預留了開放空間,設置換鞋區域,讓回家或出門的每一刻都更自然從容。

原本的客飯廳以兩種不同牆身顏色分隔,一邊是暗灰,一邊是老舊木色,令整體顯得沉重而缺乏統一感。加上沒有入牆式設計,傢俬散落各處,既不美觀亦難以維持整潔。翻新後,團隊以連貫性為核心重新佈局,將入牆櫃由玄關一路延伸至客飯廳,以統一的物料與弧形線條修飾牆身,化解了原本的銳角感,同時增加陳列與鋼琴擺放位置。飯廳上方懸掛一盞球形吊燈,空間透過一些金屬面料、木皮,以及石材提升質感,為空間注入柔和而精緻的節奏。走廊位置則以收納櫃無縫隱藏,令整體空間更整齊連貫。

我們把原有的兩間房打通,重新規劃成為一個兼具書房與家庭偏廳的多功能空間。改動後的間隔更開揚,讓男戶主在家中擁有專屬的工作與放鬆區域。空間以弧形趟門作為過渡,柔化原有的牆線,保持視覺的流動感。空間設有梳化與電視,可作為日常休憩之處,也能在家庭成員需要時轉化為共享娛樂空間。牆身運用簡約板條設計,打造出一個雅而不冷的私人天地,享受一家人或私人時光。

主人房經重新布局後,因應風水將床頭位置對調,並採用三邊落床的設計,讓整體動線更加流暢。睡房以柔和的弧形線條貫穿,呼應全屋設計主題,同時減輕櫃體帶來的壓迫感,營造寧靜放鬆的休憩氛圍。床頭板設計更加突顯了層次與質感,利用弧形圍身板配合絨布,打造溫暖的包圍感。主廁則延續相同的色調,劃分企缸與浴缸區,玻璃門營造通透感,結合實用與美感,呈現出如酒店般的高雅格調。

在打造兩間小朋友房時,設計團隊特別考慮到公平分配,因此兩間房的格局都保持一致,讓兩位小孩都擁有屬於自己的小天地。設計上以他們喜歡的色調作主軸,配合藝術塗漆的牆身質感,打造出既活潑又不失品味的氛圍。每個細節由色彩搭配到燈光配置都經過精心安排,可以展現孩子的個性之餘,又能讓空間保有成長需要添置傢俬的彈性。